【疫情之下的默契合作】時產500公斤木薯淀粉線落戶玻利維亞
2021-11-09
2020年,疫情籠罩下,全世界的加工制造、遠航運輸、跨境辦公等行業遭遇重創,超時停擺。南陽固德威機械裝備有限公司通過線上交流,按時交付完成了南美洲-玻利維亞客戶的時產500公斤的木薯淀粉生產線項目,并協助客戶順利及時投產。
從廠房規劃、圖紙設計、設備制造與發貨、遠程安裝指導、設備使用及售后服務等都由南陽固德威全權負責。及時溝通加高效解決,固德威在玻利維亞又完美落成了一個木薯深加工項目。
一.客戶創業背景
Jorge先生在玻利維亞有一個大型木薯種植基地,同時周邊還有很多小型木薯種植戶。他了解到木薯淀粉市場需求量巨大,廣泛應用于造紙、食品、飲料、化工等行業,市場穩定附加值高。客戶就想通過加工木薯淀粉,帶動周邊種植散戶共同發展木薯深加工項目增加收入。

2020年,Jorge先生決定建立一家木薯淀粉加工廠。通過網站搜索到南陽固德威,于2月8日用西班牙語向固德威發來了詢價信息。銷售經理利用翻譯軟件以西班牙語,向Jorge先生介紹我公司情況以及我們的木薯淀粉生產線在設備性能、能耗(水電等)、占地面積、設備價格、設備耐用性和技術先進性等方面與其他廠家的對比信息。
二.項目準備階段
前期溝通中,Jorge先生表示預算有9萬美金,需要購置一條小投資的木薯淀粉生產線,時產500公斤左右。由于廠房車間計劃建造在當地村莊附近,水電等基礎設施有限,所以客戶明確提出以下幾點需求:節能、耗電少、維護成本低、操作方便。而固德威的經濟型木薯淀粉生產線由于配置了我司自主研發的節能降耗的曲網擠壓制粉機恰恰滿足客戶在這些方面的要求。

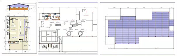
當時正值國際疫情發酵嚴重時期, 為了盡可能多方協助Jorge先生推進木薯淀粉加工項目,保證客戶的投資項目盡快開展建造實施,我司主動提供了木薯淀粉加工項目的廠房建設、生產線布局和車間基建圖紙供客戶做前期準備工作。

三.確定合作方案
通過充分了解,Jorge先生認識到我們是專業的木薯淀粉加工機械制造商,擁有自己的工廠和先進的木薯淀粉生產技術,是他需要尋找的合作伙伴。
雖然處于疫情之下,Jorge先生還是迅速的做出了選擇,距離首次聯系只有一個月的時間內,在當地銀行為控制疫情暫停營業的前一天,與我司簽訂了500公斤木薯淀粉生產線項目的設備購買合同并支付了定金,確定了合作。
四.工廠建造階段
按照固德威工程師設計提供的工廠建造圖紙,其中詳細包括了設備布局、水電線路、管道設計等,Jorge先生開始進行廠房基建工作。在設備制造期間,Jorge先生不斷發來根據我司設計圖紙,建設的廠房和車間情況,愉快的和我們分享工程進度。

五.設備制造與發貨
2020年7月底,在視頻驗貨以后,Jorge先生支付了尾款。40尺高的貨柜整整裝滿兩箱,從河南南陽方城出發,準備漂洋過海發往南美洲的玻利維亞。這是固德威的第幾個出海項目早已數不清了,可是固德威開疆擴土到玻利維亞, 意味著我們的設備得到了更多客戶的認可,意味著我們的設備又到了新的領土去發揮它的價值。

六.設備安裝調試階段
2020年9月中旬,滿載著客戶期望的貨柜抵達客戶的工地。受當地疫情影響, Jorge先生要求我司提供指導視頻和安裝使用手冊,并在我們技術團隊的遠程視頻指導下成功的安裝并運行成功,伴隨著白花花的淀粉從包裝機里裝進袋子里,也意味著此次淀粉項目的成功投產。

七.工廠試運行階段
目前,玻利維亞客戶的小型木薯淀粉加工廠,已經順利投入使用,經客戶反饋,設備性能穩定,同時客戶透露未來有計劃在周邊城市再上一條生產線。
南陽固德威機械裝備有限公司是專業從事木薯淀粉加工項目的的設備廠家,堅持為用戶提供貼心實用的設備選購方案,為每一位用戶量身打造一站式交鑰匙工程。如有需要,歡迎與我們聯系!




版權所有:方城縣固德威薯業設備廠 未經許可謝絕轉載. 電話:400-6988981